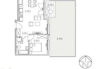
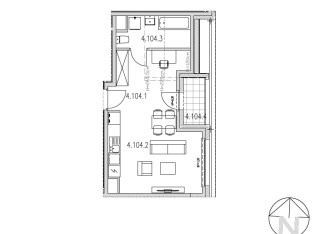
Wieliczka, Św. Barbary Mieszkanie na sprzedaż
Pośrednik w Obrocie Nieruchomościami
Licencja: 16271
karolina@studiotectum.pl zostaw wiadomośćPośrednik w Obrocie Nieruchomościami
Licencja: 16271
karolina@studiotectum.pl zostaw wiadomość



LOKALIZACJA II etap inwestycji Osiedle Solne to nowoczesna inwestycja mieszkaniowa zlokalizowana na granicy Krakowa i Wieliczki przy ul. Św. Barbary w sąsiedztwie domów jednorodzinnych i zabudowy szeregowej. To 3 nowocześnie zaprojektowane segmenty o eleganckiej ...
LOKALIZACJA II etap inwestycji Osiedle Solne to nowoczesna inwestycja mieszkaniowa zlokalizowana na granicy Krakowa i Wieliczki przy ul. Św. Barbary w sąsiedztwie domów jednorodzinnych i zabudowy szeregowej. To 3 nowocześnie zaprojektowane segmenty o eleganckiej ...